氣動球閥
當前位置: 首頁 > 產品展(zhǎn)示 > 球閥 > 氣動球閥

氣動放料球閥
產品簡介
產品型號:FQ641F
公稱通(tōng)徑:DN15-DN250
公稱(chēng)壓力:1.0MPa-6.4MPa
適用溫度:-10℃-180℃
適用介質:水、油、氣、酸堿物等
閥體材(cái)質:鑄鋼(gāng)、不鏽鋼
1、采用氟塑料襯裏層的球閥,具有極高的化學穩定性,可以適用於任何強腐蝕性(xìng)化學介(jiè)質;
2、采用全通徑、浮動球結構,閥(fá)門可在整個壓力範圍內進行無泄漏關閉,便於管路係(xì)統的通球掃線和(hé)管路維護;
3、啟閉件球體與閥(fá)杆鑄(鍛)為一體,減少了由於壓力變化引起閥杆衝擊承壓件內的可能性;
4、結構緊湊合理,閥體內腔空間小,減小了介質滯留,另外,模壓工藝,使密(mì)封麵致密度良好,加(jiā)之人(rén)字環形PTFE填料組合,使閥門泄漏小。
設計標準 | GB/T 12237-1989 |
結構長度 | Q/OLF002-03 |
連接(jiē)端(duān)標準 | GB/T 7307、GB/T 79、ISO 2852 |
試驗標準 | B/T 9092-1999 |

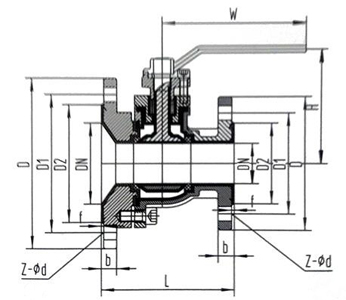
公稱通徑DN | 主要外形尺寸和連接尺寸mm | |||||||||
D | D1 | D2 | z-φd | n-φd | L | L0 | H | b1 | b2 | |
25 | 235 | 85 | 125 | 4-φ14 | 4-φ14 | 120 | 220 | 115 | 15 | 22 |
40 | 235 | 110 | 160 | 4-φ18 | 4-φ18 | 135 | 250 | 130 | 19 | 22 |
50 | 230 | 125 | 190 | 4-φ18 | 8-φ14 | 160 | 250 | 125 | 14 | 20 |
80 | 245 | 160 | 210 | 4-φ18 | 8-φ14 | 200 | 400 | 184 | 15 | 22 |
在線留言